在市场需求、政策支持双重驱动下,近年来干仓改冷仓趋势明显。但在改造过程中的问题往往比新建冷库复杂很多,都有更多问题需要提前设计、解决。如月台宽度不够,能做几个装卸口?门与门之间的距离多少合适?跑冷严重怎么办?如何设计月台才能安全、便捷的装卸货?本文就装卸货区域设备组成,不同场景下的设备应用,再提出改造过程中经常遇到的问题,提供相应的解决方案。
一、装卸区域组成及设计注意事项
装卸区是冷库非常重要的区域,它是连接外部环境和冷库之间的唯一接口。物流中心的装卸区主要由月台、连接月台与车厢的装卸货平台(登车桥)、库门、密封系统四大部分组成。装卸区的设计必须与冷链物流运作特点相匹配,才能保证整个作业流程的高效。
(一)装卸口
在设计装卸口距离时,卡车之间的距离至少应该有让卡车开门和关门的距离,以方便司机操作。两个临近的装卸口中心距最小距离应为3.5m,建议中心距离是4m。
(二)月台
月台的核心作用有两个:一是阻挡车辆继续向建筑物方向移动,当一台高于月台的车辆停靠时,它有可能会破坏库房门、卸货平台、保险杠和车辆本身,这时月台应装有加高橡胶缓冲器保护站台及相关设备。二是保证不同类型车辆全装卸货。

对于运输车辆,货车车厢板高度与月台的高度差应尽可能小。如果这种差异过大,就必须使用更大尺寸的卸货平台来调节,以保证使其能够使用。

对于搬运车辆,应爬坡能力和离地间隙都会影响装月台的高度及相关配套装卸货平台长度,主板与搭板的角度。

当有配备液压装卸货尾板的车辆停靠时,必须考虑预留液压尾板存储区域,即滑入装卸货平台下方(见下图)。捷曼承接过由于未设置液压尾板存储槽尾板插槽的项目,货车的液压尾板将门边包口、门罩、提升门撞到变形,脱轨。损失成本是一方面,其中的安全隐患也需要注意。没有设计尾板插槽的装卸口,在遇到带有液压尾板的车辆时,只能将尾板插槽放平,倒车到库板位置,再将装卸货平台搭接到尾板上,悬空通过人工装卸货,十分危险,而密封也完全失去了应有的作用。

什么样的液压尾板存储槽(尾板插槽)是合适的呢?我们建议,预留液压尾板存储槽最小宽度为2800mm、最小长度为2400mm;预留液压尾板存储区域高度大于350mm。注意:宽度小于2800mm的尾板插槽实用性很差。

尾板插槽示意图
(三)装卸口门洞
装卸口门洞尺寸设计时应考虑月台形式、月台高度、货车大小、门封类型、装卸货平台尺寸等因素。如果门洞设计过大,就需要与之配套的更大的门封或门罩,将加大门和门封门罩的投入成本、冷气或热量的大量流失等问题;如果门洞设计过小,可能会影响卸货、装货作业,并产生刮蹭门洞等风险。
基于这些原因,我们建议:冷链物流、市内配送中心门的尺寸为 2000mm×2500mm;常温物流中心门的尺寸 3000mm×3000mm或2400mm×2700mm。如果有高叉经常进出,门洞口高度应在4000mm以上。
(四)装卸货平台(登车桥)
装卸货平台也被称为“登车桥”,是连接穿堂与车厢之间的桥梁,货车停靠后,装卸货平台通过调整高度搭接到货车车厢,叉车、地牛等装卸货设备可以通过装卸货平台进入叉车内部,高效装卸货物。
装卸货平台的安全系数极为重要,目前有通过光电感应与提升门形成互锁,有防滑花纹钢板设计,搭接角度设计、急停、安全阀等安全措施。不同装卸货平台的功能也有些差异。那么不同的平台应对怎样的使用场景呢?
1、翻转式装卸货平台
翻转式装卸货平台产品结构简单,是市面上最常见的一种装卸货平台产品,使用方便,搭接板长度400-500mm,基坑550-600深。但是若在车厢货物满载情况下,翻转式装卸货平台搭板没有展开空间,就不太适合了,这时可以采用伸缩式装卸平台来代替。
而断冷桥或无断链装卸口,则是由于舌板长度问题,也需要选择伸缩式装卸货平台来解决。

翻转式装卸货平使用场景
2、伸缩式装卸货平台
伸缩式装卸货平台工作运转高速、精确,非常适合冷链物流项目,配合断冷桥的装卸口设计,通过特殊基坑设计,阻断由平台冷桥导致的跑冷,减少冷库能耗。

伸缩式装卸货平台
低温穿堂下通过充气门封,从穿堂打开货车门的设计方式,可以保证货物全程冷链状态,与外界环境0接触,这就是近些年逐渐成熟深化的无断链装卸口。无断链装卸口可以视为断冷桥装卸口的深化,含有断冷桥装卸口的阻断跑冷特点,当然,具体项目中,需要结合月台、车型等因素深化设计。

无断链装卸口,带尾板插槽
3、手动铝制平台
手动铝制平台主要应用于装卸货物自重轻,月台与卡车厢低高度相差不多的工作环境。此种设备基本不需要预置基坑,因此非常适合改造库的安装。

手动铝制平台
4、外置钢结构站台(框架式平台)
在干仓改冷仓的时候,也许现场无法提供混凝土基坑、或是没有足够的时间土建。遇到这种情况,钢结构外置站台基坑是一种较为经济的解决方案,但需要注意的是,为确保钢结构外置站台基坑的稳定,支腿位置必须做基础处理。这种外置站台还应考虑到防雨设计(滑倒风险),雨棚最好做到高5米,延伸跨度5米,以防止雨水侵入平台。

外置钢结构站台
5、装载间
装载间是由一个外置装卸货平台和一个密闭站房及门封或门罩组成。这种类型装载间能有效的隔离室内与室外的环境,同时如果原干仓没有适合的装卸口,也可以用装载间来解决装卸货问题。


6、剪叉式升移动降平台
剪叉式升降平台在干仓改冷藏中用的比较多,当内部与外部高度差异过大,无法通过其他卸货平台调解时,就需要用到剪叉式升降平台。安全高效,适用于各种高度的货车,可选双速控制系统允许卸货平台加速上升以提高作业效率,带有菱形方格花纹的面板和延伸板,可靠性高,免维护,免润滑轴承。

(五)装卸口及通道用门
门是所有建筑物中最常见的组成部分,专供人员进出的通道,进出大型设备的通道,进出货物的通道等。这些功能不同的通道再加上室内环境的需要,对这些门从规格型号、控制方式、门体材质、安全装置等各方面提出了特定的要求。从长远的运行周期,与单位时间所创造的价值来看,门要具有稳定可靠的性能,还要有及时的售后服务体系,以保证长期的使用和生产的连续性。
所以,我们必须要了解不同类型工业门的性能及使用特点,才能选出真正满足要求,节约能耗、安全耐用的门类产品。
装卸口门类产品主要有以下几种类型:
A)针对不同穿堂温度,不同处理的工业滑升门。
B)不同使用场景下的通道用门、组合门。
1、工业滑升门(工业提升门)
作为专业的外部用门,工业滑升门是物流建筑中最常见的产品。它的各种功能都是在工业及物流建筑环境中逐步发展的。如今的工业滑升门,具备着经济、耐用、保温、密封、高频率开关、使用寿命长、各种控制方式、使用安全等多方面功能,是装卸口用门的首选,也是绝大多数干仓冷仓主要的对外门类产品。

开启时,通过精妙设计的扭簧平衡系统,经过电机/手动控制,在完美的力学比例下保持门的静止 ,通过电子限位提前减速,在弹簧顶杆的辅助下停在指定的位置。门关闭时,借助弹簧顶杆的部分推力,在电机的作用下开始门的关闭行程,当下方有障碍物时,通过底部的安全气囊感应,门会自动停止或上行,降低穿堂的危险因素。扭簧处的扭簧断装置、门底的钢丝绳防断装置,更可以降低门下区域意外状况下的危险因素。

2、冷链物流滑升门

在穿堂中,装卸口是造成能耗增加的一大因素,所以建设过程中,在满足使用条件的情况下,门洞的大小越小越好。关于这个问题,捷曼在丰富的案例中整理了一些配置方式,可以作为参考。

当然,门板的厚度只是其中一个因素,在其中真正起作用的,是独特断冷桥设计的门板和断冷桥的安装方式。在厚度、使用场景的条件变化下,配件也会有所调整,比如防止结雾的冷链物流专用三层聚碳酸酯玻璃,特制的密封条、扭簧、断冷桥安装等。
3、快速门
这是一种更加专业的工业用门。它的开启速度可达1.2米/秒,最大瞬间速度可达2.5米/秒。多用在工业厂房及仓库不同单元的通道连接处,可以阻隔空气流动,保证特定单元的环境达到标准。在自动化库中,也可以用保温快速门达到使用要求。

(六)装卸口密封系统
在装卸货过程中,最容易受到天气、灰尘等影响,而装卸货时的冷热空气对流不但对货物存放温度有影响,也会产生不必要的能量损耗,通过安装门封(门罩)可以降低冷热空气对流,防止灰尘、昆虫进入室内,保持室内的工作环境,提高工作效率、降低建筑能耗等。
物流装卸口密封系统有很多产品,机械式门封(门罩)、固定门封(海绵门封)、可调门封、充气门封等。应该如何选择合适的密封产品,既可以满足要求,又能有效节约成本呢?不同装卸口密封系统对比如下:
1、机械式门封(门罩)
门罩是应用最普遍、最经济的门封解决方案,卡车驾驶员通过门罩两侧导向指针,将卡车倒入装卸口,门罩两侧及顶部密封帘将车厢包裹,产生密封效果。门罩结构采用优质镀锌钢板经挤压成型,采用可变的菱形结构,能有效的承受车辆产生的冲力。当车辆驶离装卸工位时,门罩在自身作用力下,迅速恢复初始状态。门罩表面材料采用高质量聚乙烯基纤维布,具有高耐磨性,大大提高门罩的使用寿命。门罩顶部采用倾斜设计,便于排水。顶部垂帘使用弹性抗风扣固定,能有效保证其与车辆之间的密封。门罩的总体特点是调节范围广,保温能力稍弱,可以起到一定防尘防水的作用。


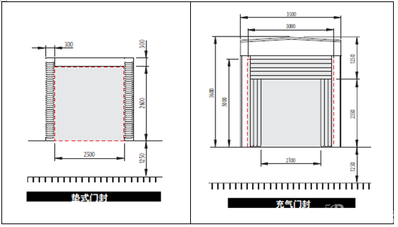
固定式垫式门封垫式门封更适用于对密封要求高,运输车型较为一致,建筑物墙体能承受较大冲击力的封闭式装卸口。门封有效密封货车在后退倒车时会压缩门门封150mm~200mm,使得货车的后部(包括货车铰链间隙)得以完全密封。牢固耐用的结构设计独有的重叠百页褶能有效减缓货车的撞击及延长门封的使用寿命。
门封材料采用1mm高质量聚乙烯基纤维布。门封衬垫采用全天候电镀钢板或优质防腐木板。 坚固的聚乙烯基涂层纤维织物固定是在衬垫的挡板上使用十六进制螺钉和金属扣眼。此种固定方式可在整个高度的门封海绵被压缩时始终保证空气的溢出,这样可减少织物损坏和爆裂的可能性。金属扣眼可预防织物在固定点上撕裂,同时保持更为完美的外观。
固定门封的特点是保温性能好,但需要运输车型较为统一,因为门封的侧面、顶部适用范围较小,如果大小车型混用,就会出现部分车型密封不严的情况。
3、可调门封
可调垫式门封是固定垫式门封的一种变式,适用于对密封要求高,运输车型高度不一致的使用场景。通过可调节海绵顶部门封或顶部门帘密封可以适合不同高度的货车。而三段垂帘门封也是一种不同高度的解决方案。

4、充气门封
卡车通过引导装置停靠在装卸口位置,高速鼓风机开始工作将气垫充起将车厢包裹,达到完美的密封效果。装卸货完成后,高速鼓风机停止工作,门封气垫收回到门封框架内,卡车可以离开装卸口。可适应不同宽度和高度的各种规格的运输车辆,特别适合冷冻仓库和装卸时间长又需要保温的场所。而对于无断链装卸口,由于要满足从穿堂内打开车库门的要求,充气门封可以满足使用要求。

充气门封的密封效果好,适用范围广,但成本要远高于前两种,所以按经济、实用的角度来看,我们应该根据货物要求、车型是否统一,来选择合适的密封产品。


二、关于捷曼及捷曼解决方案
(一)捷曼门业——一站式工业用门解决方案供应商
捷曼门业(北京)有限公司,是专业从事工业门、冷库门、超大门及物流装卸口设备的综合提供商,致力于改善工厂进出人口、装卸口位置环境,降低企业使用设备运行成本,为用户提升使用设备的便利性、安全性、经济性。
捷曼提供的产品完全均循欧盟标准进行生产、制造,其产品的主要核心部件全采用进口,提供的产品通过欧盟的CE认证,是全行业内为数不多能够提供全系列工业门、冷库门、超大门及物流设备的企业。捷曼产品集先进理念与高性能控制系统于一身,高智能化、高性价比、卓越品质、安全耐用,广泛应用于汽车制造、航空航天、地铁车辆、食品、医药、化工、电子、 精密机械、洁净厂房、冷冻冷藏业等相关产业,特别在食品、医药、冷冻冷藏、汽车制造、通用航空等行业。
捷曼拥有十几年冷链物流项目施工经验,承接项目涵盖新建冷库、干仓改冷仓、厂房改造冷库、中央厨房等类型,服务项目包括产地的水果预冷库、肉食工厂、国际贸易周转港口物流中心、城市生鲜配送中心等。

(二)捷曼解决方案
通过装卸口设备来减少内外空气交换,不但可以保证货品的温度,还能降低穿堂产生的额外能耗,经过不断的产品迭代,捷曼已经将成熟的解决方案运用在诸多项目中。
1、无断链装卸口解决方案

无断链装卸口,可以提高能源利用效率,解决冷链装卸货过程中货物温度变化的问题,下表是装卸货过程对比:

捷曼的无断链装卸口解决方案,根据使用场景的不同,分为伸缩式无断链装卸口和垂直式无断链装卸口。伸缩式无断链装卸口又分为贯通型、豁口型两种,而对于货品温度要求不大的,又有着能够有效减少能耗的断冷桥装卸口。应对不同的使用场景和客户要求,捷曼擅于提出自己的优化方案。
2、穿堂组合门解决方案
将快速提升门调整为组合门(手动平移保温门+快速保温冷库门),白天工作繁忙时段,将手动门完全打开,用快速保温冷库门实现快速开启关闭,保证库内的环境温度。

为什么要用为组合门?冷库运行过程中,冷量损失有以下几部分:开门冷气外泄、货物自身温度、搬运车辆和人的温度等。其中,开门时冷气外泄是最大一块(见图),此类型的物流中心,由于进出货物繁忙,冷库门的运行速度慢,冷库门在装卸过程中极有可能是在完全开启状态。所以冷库门应配备冷库快速卷帘门或者是PVC冷库自由门,快速切断冷气流失同时在通道地面做地加热减少通道湿滑,杜绝安全隐患。

(三)实际应用案例
北京天时丰益项目


大连港毅都项目


广州普冷项目


新时代鞋服物流与供应链面临的变革和挑战03月07日 20:38
点赞:这个双11,物流大佬一起做了这件事11月22日 21:43
物流管理机构及政策分布概览12月04日 14:10
盘点:2017中国零售业十大事件12月12日 13:57
2017年中国零售电商十大热点事件点评12月28日 09:58